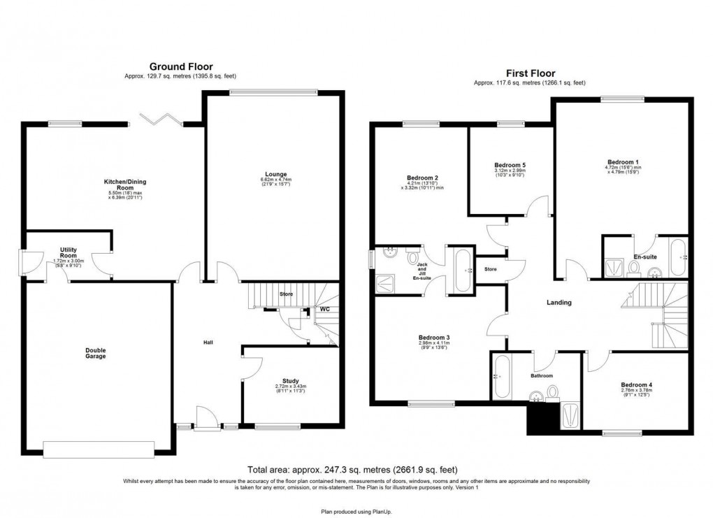
Description
- 5 Bedroom House
- Lounge with Media Wall
- Kitchen/Dining/Family Room
- Study
- Master with En-suite
- Jack and Jill Bathroom
- Utility Room
- Family Bathroom
- Garage
- Council Tax Band G / EPC rating C
An immaculately presented 5 bedroom detached home, in an excellent location within this popular new development. The welcoming Reception Hall is fitted with bespoke cloaks cabinets, stairs to the first floor with built in storage cupboard and a separate Cloakroom/WC. The spacious Lounge feature a contemporary media wall incorporating a panoramic style fire, TV recess and display shelves with LED lighting. Also to the rear is a magnificent open plan Kitchen/Dining/Family room, with bi-folding doors to the rear garden. The Kitchen is fitted with a superb range of base and wall units with solid worktops with breakfast counter and sink unit. Quality appliances include, electric oven combination oven, gas hob with extractor over, dishwasher and fridge freezer. The Utility Room is also fitted with matching cupboard units, sink unit, plumbing for a washer, space for dryer and door to the outsid
Floorplan
EPC
To discuss this property call us:
Market your property
with Goodfellows Estate Agents
Book a market appraisal for your property today.
